top of page
Services
- Development Approvals
Public Engagement
Client
- Towers Realty
Collaborators
- NA
Overview
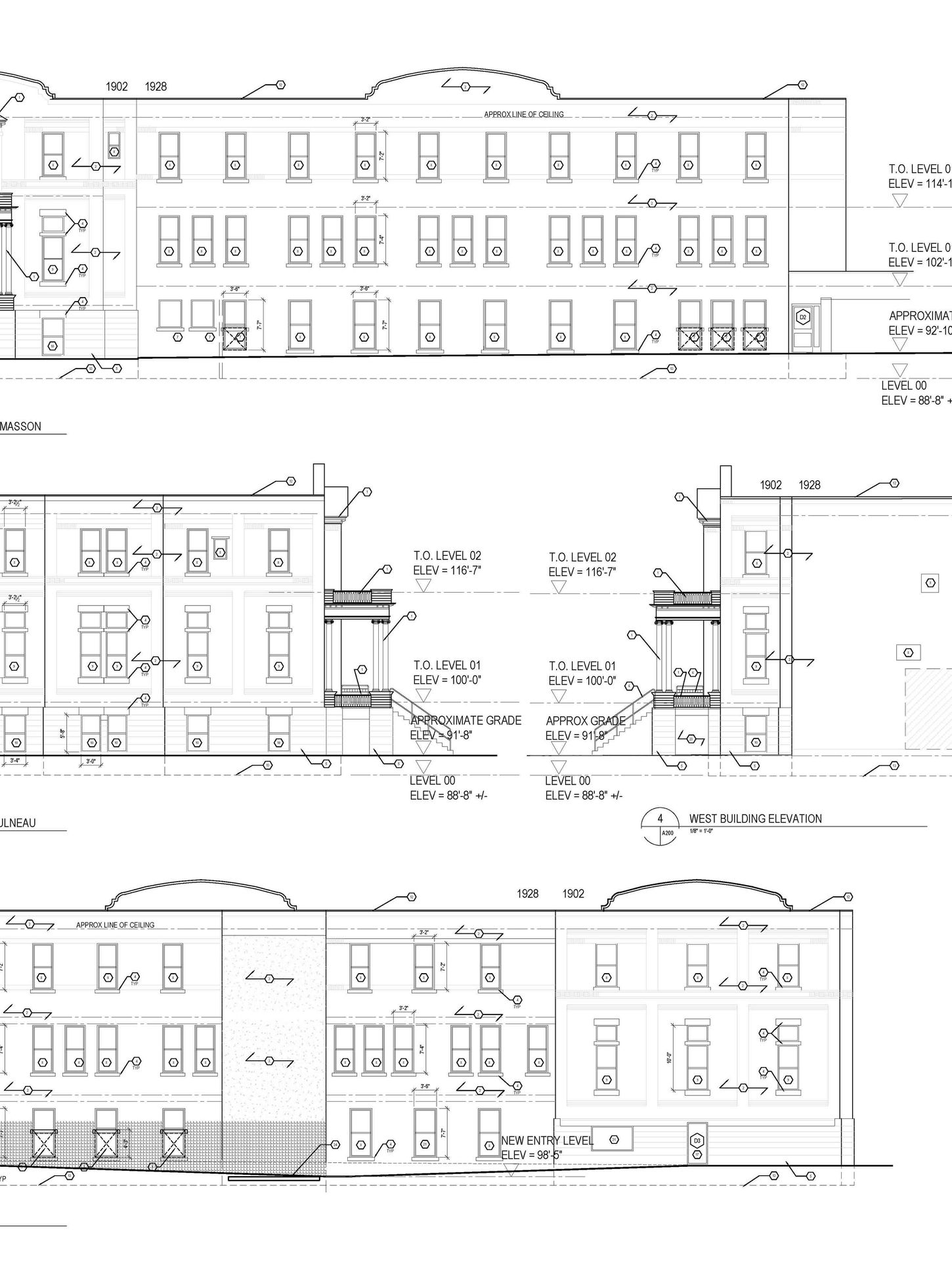
MRA was retained by Towers Realty to manage the redevelopment of 210 Masson, a heritage property in Central St. Boniface. The project transformed a vacant heritage building into a 31-suite residential building. The development approval process included a variance, heritage endorsements, and grant funding from the Heritage Economic Development Incentive (HEDI) Tax Increment Financing (TIF) program, Gale Parvin Grant, and Provincial Heritage Grant. Heritage conservation efforts were successful and helped protect mature trees, original masonry, wood paneling, and decorative columns, ensuring the site’s historical integrity.
-Street-View-of-Masson.jpg)
210 Masson Street
Winnipeg, Manitoba
bottom of page


